FIRE PROTECTION Services WE OFFER

SMALL BUSINESS

Residential

Commercial
Designing Fire Suppression Systems: A Critical Component of Building Safety
Designing comprehensive fire protection plans is a legally mandated requirement for any commercial, residential, or industrial construction project. Professional fire protection design involves creating detailed technical drawings and specifications that show the precise placement of fire sprinkler systems, fire alarm devices, smoke detectors, exit signage, emergency lighting, and fire-rated construction elements throughout a building.
These plans must comply with local fire codes—such as the San Francisco Fire Code—and are essential for obtaining building permits. The design process requires careful consideration of building occupancy type, square footage, ceiling heights, water flow availability through hydrant testing, and specific hazards present in the space.
Before any construction can begin, these plans must be submitted to the local fire department’s Plan Check Section for rigorous review to ensure code compliance. During this review, fire department officials verify that sprinkler head spacing meets coverage requirements, alarm notification devices are properly distributed, exit pathways are clearly marked, and all fire-rated assemblies are correctly specified.
Once approved, these plans become the blueprint for installation contractors, and subsequent inspections verify that the installed systems match the approved drawings exactly. Without professionally prepared and approved fire protection plans, no building permit will be issued, and no construction can legally proceed—making expert fire protection design an absolutely essential first step in any building project.

Over the years, we’ve partnered with a wide range of clients, including commercial property owners, residential communities, and small businesses. Each project is approached with the same commitment: to deliver fire protection solutions that are practical, code-compliant, and built to last. Whether it’s designing sprinkler systems for a warehouse, creating fire alarm layouts for a new housing development, or ensuring a small business meets local safety requirements, we have the expertise to get it done right.
What sets us apart is not just our technical knowledge, but our focus on service. Fire protection is about more than passing inspections — it’s about creating safer environments where people can live, work, and thrive. Our team takes the time to understand the unique risks of every building and business we work with, then develops systems tailored to those needs.
With a history spanning four decades, we’ve seen fire codes evolve, technology advance, and safety standards become more demanding. Through it all, we’ve stayed at the forefront by combining proven methods with modern solutions. When you choose us, you’re choosing a partner with unmatched experience, a commitment to safety, and a reputation built on trust.
am fire protection services Is An Independent, Locally-owned, And Operated san francisco fire protection services company
Extensive knowledge and expertise in all facets of fire protection to keep you & others safe.
Our knowledge extends beyond basic compliance. We stay current with evolving NFPA standards, local building codes, and the latest advancements in fire safety technology. Whether it’s designing advanced sprinkler systems, integrating reliable fire alarm networks, or preparing precise fire protection drawings, we apply both proven practices and modern innovations. Clients rely on us not only for technical accuracy but also for the confidence that every detail of their fire protection system has been carefully considered.

What Our Customers Say
I have used AM Fire for many years and they not only always come through, they are focused on quality to me and more so my clients, look forward to continue working with AM Fire.
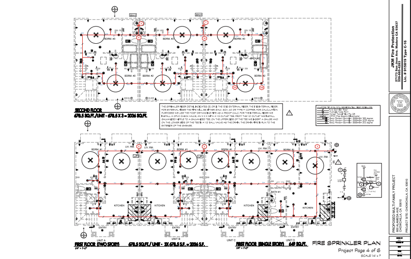
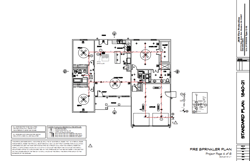
OUR FIRE SYSTEM DESIGN EXAMPLES
Contact





